Byt 206


Podlaží: 2

Kapacita

2 osoby

Dispozice

1 + kk

Velikost

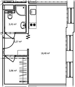
30 M2

Stav

OBSAZENO

do: 30. 04. 2024

Cena

12 000 / měsíc

Vybavení je řešeno jako víceúčelové s možností dlouhodobého pronájmu jak pro studenty, mladý pár tak jako pronájem pro firmy pro zaměstnance. Vnitřní vybavení je řešeno standardně tj. plovoucí podlaha, plastová okna, žaluzie, velká šatna, koupelna - sprchový kout, toaleta, umyvadlo. V obytné místnosti je kuchyňský kout s linkou a zabudovanými spotřebiči (lednice, pračka, el. varná sklokeramická deska, digestoř). Obývací pokoj je vybaven dvěma postelemi s úložným prostorem a nočním stolkem, křeslami, konferenčním dvojstolkem, jídelním stolem, pracovním stolem nebo komodou a TV sestavou. Vybavení se může lišit dle velikosti bytu.

Detail

Kuchyň

Sprcha

Pračka

WiFi

Parkoviště

Zákaz kouření

Fotogalerie

Kapacita

2 osoby

Dispozice

1 + kk

Velikost

30 m2

Stav

OBSAZENO

do: 31. 12. 2025

Cena

12 000 Kč / měsíc

Lokalita

Radlas 6, 602 00 Brno Česká republika

Pohodlné, slušné a cenově dostupné ubytování v Brně - Zábrdovicích. Budova s malometrážními byty se nachází poblíž centra města.

Kontakt

Lidia Vagundová

tel: 737 212 792
Tato e-mailová adresa je chráněna před spamboty. Pro její zobrazení musíte mít povolen Javascript.

Recepce

Tel.: +420 737 212 792
Email: Tato e-mailová adresa je chráněna před spamboty. Pro její zobrazení musíte mít povolen Javascript.

Adresa

Radlas 84/6
602 00 Brno
Česká republika